联系我们contact us
全国咨询热线183-6108-6656

盐城紫光建材设备有限公司 

工厂地址:盐城市上冈产业园204国道西侧 

公司地址:盐城市解放南路268号 

电  话:86-0515-88332876  

联 系 人:王经理 

手  机:18361086656 

邮  箱:yczgjc@163.com

常见问题
当前位置:首页>>新闻资讯>>常见问题

脱硫石灰粉磨细工艺

作者: 点击:582  发布日期:2024年11月01日
信息摘要:
石灰石—石膏湿法脱硫所用的脱硫剂为石灰石粉。目前我国火电厂的烟气脱硫工程还处于起步阶段,生产烟气脱硫用石灰石粉的专业厂家很少,只有水泥厂生产一些供水泥生产用和化工用的石灰石粉,其生产能力低、工艺技术落后,石灰石的细度不均匀粉,价格高,供应不

石灰石—石膏湿法脱硫所用的脱硫剂为石灰石粉。目前我国火电厂的烟气脱硫工程还处于起步阶段,生产烟气脱硫用石灰石粉的专业厂家很少,只有水泥厂生产一些供水泥生产用和化工用的石灰石粉,其生产能力低、工艺技术落后,石灰石的细度不均匀粉,价格高,供应不稳定,且未形成有规模的市场。因此为了确保火力发电厂烟气脱硫工程用石灰石粉的长期稳定供应,节省成本,可考虑配套建设石灰石磨粉厂。

脱硫石灰粉磨细工艺

一、概述

随着环保意识和环保要求的提高,为了控制SO2的排放量,国内火力发电厂都要求上烟气脱硫工程。大多数火力发电厂脱硫采用石灰石—石膏湿法脱硫工艺,因采用该工艺处理全烟气量时的脱硫效率不小于95%。

石灰石—石膏湿法脱硫所用的脱硫剂为石灰石粉。目前我国火电厂的烟气脱硫工程还处于起步阶段,生产烟气脱硫用石灰石粉的专业厂家很少,只有水泥厂生产一些供水泥生产用和化工用的石灰石粉,其生产能力低、工艺技术落后,石灰石的细度不均匀粉,价格高,供应不稳定,且未形成有规模的市场。因此为了确保火力发电厂烟气脱硫工程用石灰石粉的长期稳定供应,节省成本,可考虑配套建设石灰石磨粉厂。

二、技术特点

石灰石磨细系统采用球磨机干式制粉工艺,与传统的立磨干式制粉工艺相比,具有以下优点:

 1.管磨应用、发展史悠久,技术非常成熟、可靠。与立磨相比故障率极低,维护工作量小;

2. 管磨技术发展较快,处于国内 水平,且相同规格的管磨机,出力可增大30~50%;

3.  与立磨工艺系统相比,管磨工艺系统设备少、投资低、电耗低。

4. 系统及总平面布置相对较合理,占地少。

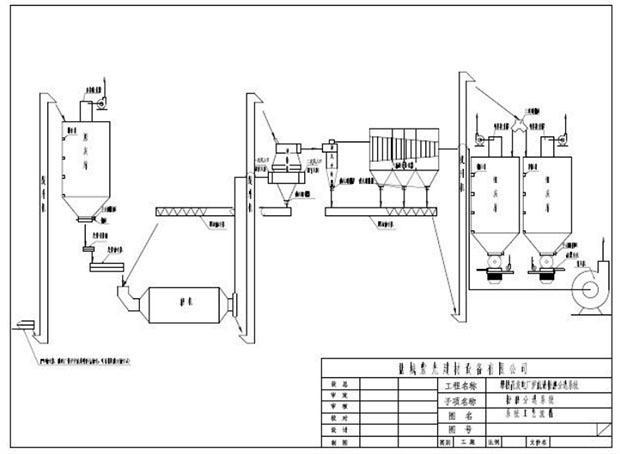
三、石灰石磨细加工工艺流程

根据贵司石灰石的处理量和市场情况,选用我司生产的ZG-500型高效涡流选粉机与φ2.4×9m球磨机相配套,组成圈流粉磨系统,考虑到市场容量及石灰石粉综合利用长远规划、科学合理配置,生产规模定为年产20万吨细灰。设计配置30T/H磨细系统,日处理灰量为600吨。。

 

工艺说明:原料从原料库卸料,经调速电子皮带称进行定量给料及计量后,将原料均匀、稳定地喂入管磨机内。进入磨机内的石灰石经磨内粉碎、研磨后从磨尾出料装置排出,进入混合提升机,将粉磨后的石灰石半成品粉喂入高效选粉机内进行分选。选粉机选出的细粉由除尘器收集后经空气斜槽输送机输送到提升机将其输送至成品粉库储存;选粉机排出的粗粉由空气斜槽输送机返回至磨机进料口,与新加入的原料混合,重新进行磨细,形成圈流磨系统。磨机尾部配有收尘系统进行收尘,采用此种闭路研磨工艺与开路(无选粉机)系统相比可提高台时产量30~40%以上,是石灰石磨细深加工的理想设备.

(注:选粉机细粉和磨机通风共一台除尘器)

四、粉磨系统主要设备

1、石灰石粉磨细系统

石灰石粉磨系统主要由破碎机、原灰仓、给料机、电子计量称、球磨机、选粉机、气箱脉冲布袋除尘器、引风机、空气斜槽输送机、斗式提升机、给料机、控制系统等组成。 

石灰石球磨机,由给料部分、筒体部分和出料部分等工作部分以及轴承座、大小齿轮、减速机、联轴器等传动部件、电机、电控部分等组成。

根据贵司石灰石实际情况,建议采用闭路磨细工艺,可降低球磨机的规格,建议采用Φ2.4×9M球磨机与ZG-500型高效涡流分选机组成圈流粉磨工艺

Φ2.4×9M球磨机性能参数:

生产能力:22T/H     装机功率:570KW   研磨体:50T

细度(250目筛余):   4-5%以下     磨机转速:    21

(此参数为开路粉磨工艺时数据

一般采用圈流工艺,可以明显提高系统的台时产量,减小单位产品的电耗,降低生产成本。磨机采用脉冲布袋除尘器除尘,风机电机采用变频调速,以调节磨内风速,控制物料流速和细度。 

2、分选设备

ZG高效涡流分选机是盐城紫光建材设备有限公司在2002年引进代表当今分级领域 的日本小野田O-Sepa选粉机和丹麦史密斯公司Sepax选粉机的技术基础上,经消化吸收、自主创新开发成功的一种新型高效分级设备,其分级效率达到90%以上,料气比达到2.0~2.5Kg/m3干空气,其特出优点:

⑴、通过 化的风速,充许更多的物料直接进入选粉机,因此更适应大规模生产的需要,且其分极性能十分稳定。

⑵、ZG高效涡流分选机与尺寸相近的离心式、旋风式、转子式选粉机相比,产量要高得多,因而更适应大规模生产的需要。 合理的结构允许选粉风量、产量和喂料量在较大范围变化而不影响选粉效率,其分级性能十分稳定。

 ⑶、分级原理 。结合多种选粉原理,采用航空空气动力学分析方法对整个 流 场进行了优化设计,使得设备阻力显著减小著选粉效率更高。节能降耗非常明显。选粉机转子内装有获得国家专利的涡流整流器,转子内的气流相对转子只上升不旋转,利用气流进转子后内因动量矩减小对转子的推动力,节省驱动功率和减少磨损。物料经过两次选粉区选粉,分级精度更高、更 。

⑷.特殊的气流密封,分级流场气流速度稳定,物料分布均匀,旁路值大于或等于50%,保证了成品粒度10~80um之间任意可调。成品中不含粗颗粒,使 有利于煤灰质量提高,因此有助于提高水泥强度等级,或在保持水泥强度等级不变的情况下增加煤灰的掺入量而降低成本。

⑸、设计的直笼转子是一个由多层水平隔板与竖直异形分级叶片组成的笼形转子,水平隔板使分级区域的气流形成稳定的水平涡流,异形分级叶片使得从笼子表面进入笼子内部的分级气流在任何一点都保持相同的流速,其相对速度差<5%,因此分级区域的流场均匀而稳定,因而分级精度很高。 

(6)、由于流场均匀稳定,气流旋转速度较高,所产生的离心力和气流向心吸力都很强,因而分级精度很高,并且料气比可达到2.0~2.5,较涡轮分级机的料气比(0.7~1.0)要高出2~3倍,分级的用风量仅是涡轮式分级机的一半,因而系统能耗大大降低。

⑺. ZG-350型高效涡流分选机性能参数:

处理量:90t/h       产品细度(0.045mm方孔筛筛余):5-10%

主轴电机:22kw ;      型号:YCTL250-4A;  转速: 132-1320 r/min 

⑻.配套ZGC96-6气箱脉冲除尘器作为细粉收集系统

技术参数:

处理烟气量:40100m3/h        正常烟气温度:<130℃       

总过滤面积:576m2            过滤风速:  1.0 m/min           

压缩空气压力:0.5-0.7 Mpa    滤袋材质: 涤纶针刺毡   

室数/袋数:6-96               滤袋直径:     130 mm  滤袋长度:  2450mm  

3、石灰石原料计量及入库系统

 ⑴ 进厂石灰石原料粒度应满足如下要求:体积当量直径≤10mm、颗粒 尺寸≤20~25mm、含水率≯3%。设置电子汽车衡一台,可有效计量石灰石原料来量,也可用于外卖石灰石出厂的计量。可记录每次称重的全部结果,包括车号、货物名称、货运单位、驾驶员、毛皮重、净重等,并可打印多种格式的过磅码单、具有多种查询功能。

 ⑵ 石灰石原料采用自卸式运输车进厂,经称重后卸至卸料间室内地下原料斗。在地下料斗下设1台电磁振动给料机,将石灰石原料均匀/稳定喂入1台NE型板链斗式提升机,将石灰石原料提升至原料仓中储存。在原料仓底设2台空气炮,以便当原料发生堵料时通堵。
为解决自卸车卸料料时的扬尘,在卸料房顶设有1台ZGC型脉冲布袋除尘器。

 ⑶ 为解决石灰石原料入原料仓时的扬尘及从原料仓中所置换出的含尘气体,在库顶设1台ZGC型单机脉冲布袋除尘器。

⑷在原料仓顶设1台射频式探测料位计,可随时掌握在中间过渡仓内石灰石原料的库存情况。

4、成品粉库储存系统

⑴ 石灰石成品粉库有效容积可按业主要求设计,卸料口下装1台手动插板阀、1台气动插板阀和1台ZGS100型带收尘装置的干式散装机,排出的泛气排入库内。

⑵ 库顶设一台ZGC型单极脉冲布袋除尘器,用于净化气力输送和装车机排入的泛气、以及库底气化风及入库成品粉所置换出的含尘气体,以达到环保要求。

⑶ 成品库底设有气化装置,以利于粉库卸料、防止粉库堵料。气化装置所需气化风由专门的罗茨风机提供,并经电加热器加热。因石灰石比粉煤灰更易吸潮、板结,系统设1台油水分离器,以便除去气化风中的油和水。

⑷ 库顶设1台射频式探测料位计,可随时掌握在中间过渡仓内石灰石原料的库存情况。
5、压缩空气系统

⑴ 系统中的5台布袋除尘器喷吹用气及仪用控制起源由压缩空气提供。系统设置2台螺杆式空压机(1用1备),并配相应的压缩空气过滤器、高效除油器、无热再生吸附式干燥机及储气罐各1台,以使压缩空气品质达到以下要求:常压露点-45℃,含油量0.01PPM,含尘粒径<0.01μm。

⑵ 空压机提供的压缩空气同时作为石灰石原料库出现堵料时2台空气炮的工作气源。

6、冷却水系统

工业冷却水用于磨机轴承座、磨机减速机、磨机稀油站及罗茨风机轴承冷却,系统共需冷却水大约10~15t/h。

上一篇:第一篇
下一篇:气力输送技术
关于我们
公司简介
产品中心
粉体输送设备
环保除尘设备
粉体分选设备
粉体加工设备
新闻动态
企业动态
技术工艺
常见问题
客户案例
Copyright 盐城紫光建材设备有限公司 版权所有 备案号:苏ICP备17033288号
紫光建材是专业从事粉体工程、环保机械研制生产的企业,欢迎来电咨询!
热线电话

183-6108-6656

  • 公司名称:盐城紫光建材设备有限公司

  • 联系方式: 183-6108-6656

  • 联系地址:盐城市上冈产业园204国道西侧

  • 手机站二维码