- 专业从事粉体工程、环保机械研制生产
- 183-6108-6656
一、概述
随着火电厂大型机组的迅猛发展,中速磨煤机得到广泛的使用,而中速磨煤机在运行过程中产生的石子煤需要及时排放,否则会影响磨煤机的正常运行。由于电厂煤种多变,原煤煤质普遍变差,要求磨煤机在更大的出力下运行,同时原煤中石头、矸石、矿石等杂物较以前增多,造成中速磨煤机石子煤排放量大大增加,严重影响制粉系统的安全运行,多数电厂由于来不及运走石子煤,只能选择在现场堆积,严重污染环境。一些电厂为了减少石子煤,人为增加磨煤机风量与加载力,造成磨煤机磨辊磨损严重,对锅炉运行及受热面磨损也带来不利影响。前述石子煤排放方式都难以完全适应目前石子煤量大大增加的问题。对新建机组,水力排放是可行的方案,但对于老机组改造,则往往难以布置。
二、普通气力输送问题
目前,部分电厂采用石子煤气力输送系统。用运动的气流为介质输送物料,是工业上早已使用的运输方法,称为气力输送。采用石子煤气力输送系统的电厂运行情况不一,经过调研,发现目前应用石子煤气力输送系统存在很多问题,主要问题如下
1.输送能力不足,石子煤量稍大 会发生管道堵塞现象;
2.现有石子煤气力输送系统普遍采用螺旋给料机作为石子煤进料设备,对粒径大的石子煤无法输送;
3.现场仍有粉尘泄露,系统故障较多。
4.螺旋给料机作为转动件,在输送石子煤时非常容易发生故障,也容易磨损。
之所以发生以上问题,主要原因是目前国内气力输送生产厂家对气力输送石子煤系统的理解和认识有限,没有经过试验验证,系统设计缺乏依据,当石子煤量较小时还可以应付,一旦石子煤量较大,输送条件变化, 难以适应。
三、高效环保型石子煤负压气力输送系统
1、试验与研究成果

石子煤作为一种特殊物料,有其特有的输送特性,如果采用气力输送石子煤,必须对系统机理及石子煤特点充分的认识和理解,并在试验台上进行模拟输送试验,在试验成功的基础上,总结输送规律,合理制定系统设计计算系数取值,开发出专门适用于石子煤的气力输送设备,方可在电厂逐步推广应用。
因此,盐城紫光建材设备有限公司与西安热工院(锅炉设备部制粉及燃烧系统研究所)经过近半年的筹划、准备,完全按照现场实际运行条件,设计搭建了工业性试验台,采用电厂实际运行产生的石子煤(图1,其中含有较多的黄铁矿石,堆积密度2100kg/m3)进行工业性试验研究。通过大量试验,得到了石子煤气力输送系统的输送特性,开发出了一系列专门适用于石子煤的气力输送设备,成功开发出一种高效环保型石子煤负压气力输送系统。
2、工作原理及技术特点
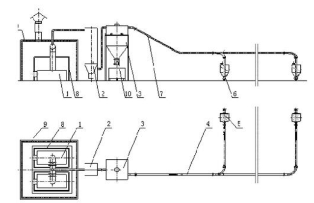
高效环保型石子煤负压气力输送系统由容积式风机产生负压气源,石子煤从中速磨煤机落入石子煤斗,石子煤中的超大粒径石子煤及铁块留在筛网上,工作人员可以通过手孔定时清理,石子煤斗有检修门,落下的石子煤通过新型石子煤进料装置送入输送管道。为防止粉尘泄露,石子煤斗与输送管道之间有连通管,保证石子煤斗保持负压状态,石子煤从管道进入石子煤仓,空气与石子煤分离后进入除尘器除尘。容1-容积风机外部有隔音间等一系列降低噪音设施。

1积风机 2-除尘器 3-石子煤仓 4-输送管道 5-石子煤斗 6-进料装置 7-上升管段 8-隔音罩 9-隔音间 10-卸料器
图2 高效环保型石子煤负压气力输送系统系统图
高效环保型石子煤负压气力输送系统具有以下技术特点:
⑴.设备构造简单,制造、加工、安装比较方便,投资费用少,建设时间短,无论是新建机组还是老机组改造都非常易于实现;
⑵.进料转置不含转动部件,出力大,无卡涩等问题,可靠性高;
⑶.维修操作容易,方便实现自动化操作;
⑷.输送效率高,设备无回程运输,输送过程中,进料口可连续加料,实现连续输送;
⑸.劳动卫生条件好,气力输送时物料在管内运行,管内处于负压,粉尘不会外泄飞扬,物料不会飞散和污损环境;
(6) 输送能力强,且输送量可以按照现场要求进行调整;
⑺.能够输送粒径较大的石子煤;
⑻.噪音小,能够满足环保要求。
3、性能参数:
输送形式:负压气力输送; 输送能力: 15t/h; 系统 真空度:-60 kPa;
入口石子煤温度:150℃; 石子煤仓容积:40m3; 石子煤粒径:≤20mm;
石子煤堆积比重:1.0 ~2.2t/m3; 输送距离:80~100m。